Informacije o proizvodu
ZAT 211 španer/zatezač za plakarska vrata
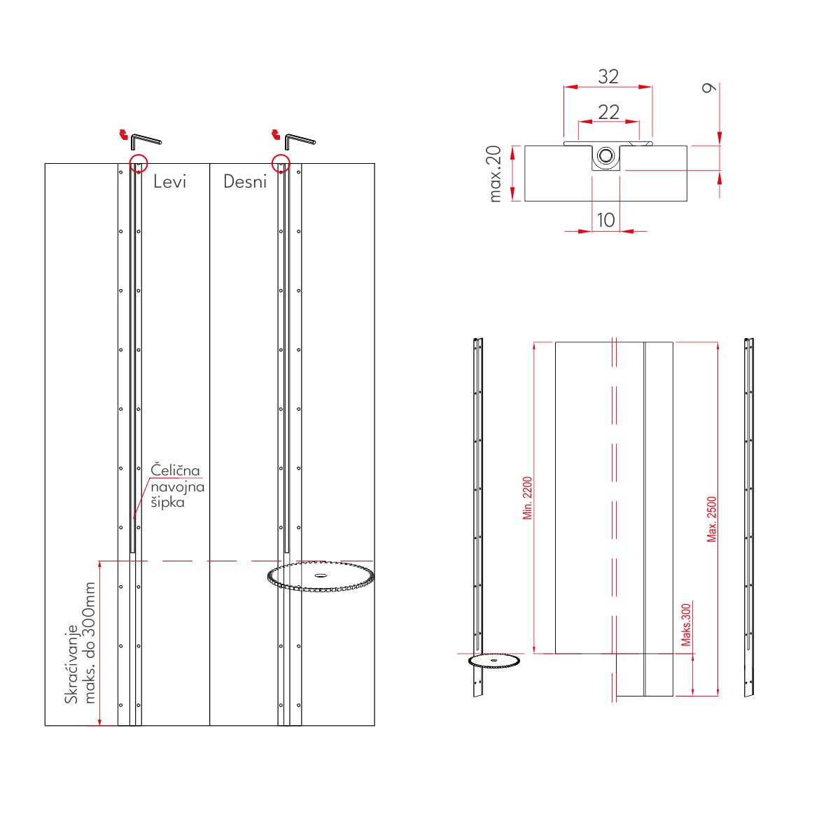
Zatezač vrata dužine 2500mm, namenjen za vrata debljine najviše 20mm.
Za jedna vrata koriste se dva zatezača paralelno postavljena po vertikali.
Kod vrata koja su šira od 1200mm, trebalo bi dodati treći zatezač.
Aluminijumski poklopac može se skratiti najviše 300mm u donjem delu zatezača.
Zatezač se podešava u gornjem delu vrata uz pomoć imbus ključa 4mm.
Zatezač TS 321 može se postaviti na vrata maksimalne visine 2800mm, a minimalne visine 2200mm.
* Cena se odnosi na par zatezača.






































































